Cách chia cắt kính nhanh bằng phần mềm

Việc chia cắt kính bằng thủ công là một công việc phức tạp và đòi hỏi kỹ năng cao. Người thợ cần phải tính toán chia cắt chính xác để đảm bảo rằng các tấm kính được cắt ra tối ưu được dư thừa. Tuy nhiên, điều này không phải lúc nào cũng dễ dàng. Việc tính toán chia cắt bằng thủ công mất nhiều thời gian và tối ưu cũng không đảm bảo hết cỡ . Chính vì thế, để tối ưu trong việc chia cắt kính thì bạn cần sử dụng phần mềm. Nên bài viết này tôi sẽ giới thiệu một phần mềm tốt nhất sử dụng trong việc chia cắt kính.

Cách chia cắt kính nhanh bằng phần mềm
Cách chia cắt kính nhanh bằng phần mềm

Nên sử dụng phần mềm cắt kính nào?

Để chia cắt kính nhanh, chuẩn và tôi ưu thì phần mềm Cutting Optimization Pro là một trong những phần mềm tốt nhất. Đây là một phần mềm mạnh mẽ giúp tối ưu hóa quá trình chia cắt kính, tính toán chia cắt tối ưu và giảm thời gian tính toán. Phần mềm này bạn chỉ nhập các kích thước cần cắt, kích thước khổ kính nguyên, sau đó phần mềm sẽ tự động sắp xếp các tấm kính một cách tối ưu và giảm dư thừa xuống mức thấp nhất.

Cutting Optimization Pro là một trong những phần mềm cắt kính tốt nhất
Cutting Optimization Pro là một trong những phần mềm cắt kính tốt nhất

Hướng dẫn chia cắt kính tối ưu bằng phần mềm

Để xem phần mềm chia cắt kính tối ưu nhanh và chuẩn như thế nào, cũng như cách sử dụng phần mềm này, bạn vui lòng xem video hướng dẫn dưới đây.

Ưu điểm khi dùng phần mềm cắt kính

So với việc cắt kính thủ công thì phần mềm cắt kính có rất nhiều ưu điểm cụ thể như sau:

  • Tiết kiệm thời gian: Tính toán chia cắt thủ công mất rất nhiều thời gian, nhưng khi bạn sử dụng phần mềm thì chỉ trong vòng 1 phút là đã có kết quả chia cắt tối ưu. Đặc biệt là với số lượng hàng trăm, hàng ngàn tấm kính.
  • Giảm lãng phí: Tính toán thủ công thì việc tối ưu dư thừa sẽ rất mất nhiều thời gian và tỷ lệ dư thừa vẫn cao. Nhưng với thuật toán của phần mềm này thì tính toán vừa nhanh, vừa tối ưu, ngoài ra còn có thể điều chỉnh khả năng tối ưu hết cỡ là không vứt đi tý dư thừa nào.
  • Tăng năng suất: Khi sử dụng phần mềm thì bạn sẽ có sơ đồ chia cắt, nên sẽ không mất nhiều thời gian tính toán từ đó tăng năng xuất làm việc.
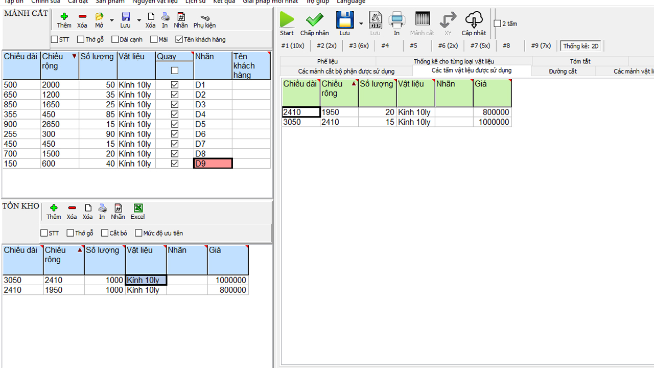
  • Tính toán được vật tư: Từ số lượng tấm kính bạn cần cắt thì phần mềm này còn tính toán ra được các tấm kính nguyên khổ hết bao nhiêu tấm với số lượng kính cần cắt đó với thòi gian trong vòng 1 phút.
  • Tính toán được giá thành: Phần mềm còn tính toán được giá thành cực kỳ nhanh chóng.
Tính toán vật tư kính nhanh chóng bằng phần mềm
Tính toán vật tư kính nhanh chóng bằng phần mềm

Download và giá phần mềm cắt kính

  • Để tải và dùng thử phần mềm này bạn vui lòng tải ở đây: Download phần mềm cắt kính
  • Giá của phần mềm cắt kính này là 600.000/máy tính sử dụng vĩnh viễn. Ngoài ra, còn có các gói 5 máy, 10 máy với chi phi cực kỳ hợp lý.

Nếu bạn cần mua và cài đặt phần mềm cắt kính này xin vui lòng liên hệ đến Hotline.

Bình luận